Ein Schaltplan zeigt die elektrische Funktion eines Schaltschranks, nicht den physischen Aufbau. Er wird von oben nach unten (Stromflussrichtung) und von links nach rechts (Strompfad mit fortlaufende Nummerierung) gelesen.
1. Nummern und Buchstaben im Schaltplan – Bedeutung und Leseregeln
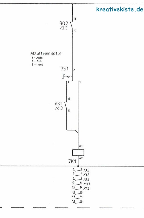
👉 6 K1 bedeute: Dieses Bauteil ist die (1) erste (K) Schützspule auf Seite (6) sechs im Schaltplan.
So hat jedes elektrische oder elektronische Bauteil eine eindeutige Kennzeichnung, hier noch weitere Beispiele::
- Die erste Zahl ist die Seitenzahl im Schaltplan
- 22 K4, Seite 22 im Schaltplan
- 44 K1, Seite 44 im Schaltplan
- 7 K3, Seite 7 im Schaltplan
- Der Buchstabe beschreibt die Art des Geräts.
- Q = Schutzschalter
- K = Schütz / Relais
- F = Sicherung
- M = Motor
- S = Schalter / Taster
- X = Klemme
- Die zweite Zahl unterscheidet mehrere gleiche Geräte.
- 11 K1, erster Schütz auf Seite 11
- 11 K2, zweiter Schütz auf Seite 11
- 11 K3, dritter Schütz auf Seite 11
Den ersten Schütz auf dem Bild findest du also auf Seite 5 im Schaltplan mit der Bezeichnung K2
2. Klemmenkennzeichnung (z. B. X1:1, X1:2)
Klemmen verbinden interne und externe Leitungen. Verschiedene Baugruppen oder Potenziale haben oft verschiedene Klemmleisten um diese Eindeutig zu trennen.
- X1 = Klemmenblock 1
- :1, :2, :3 = einzelne Klemmenpunkte(tatsächliche Klemme)
- X1:1 ist die erste Klemme von der Klemmleiste 1
- X1:2 ist die zweite Klemme von der Klemmleiste 1
- X3:7 ist die siebte Klemme von der Klemmleiste 3
3 Bauteil und Kontakte Leitungs- oder Drahtnummern
Viele Bauteile haben mehrere Kontakte auf unterschiedlichen Seiten. So zum Beispiel ein Schütz, dieser hat eine Spule mit der die Anlage gesteuert wird (z.B. K1) und Kontakte mit denen diese Steuerung dann geschaltet wird (z.B. 13/14 oder 21.22)
- Der Kontaktspiegel unter 7 K, gibt an wo diese Spule nun überall im Schaltplan Kontakt hat.
- Drei Schließer auf der Seite 3 im Strompfad 3
- Einen Schließer im auf der Seite 11 im Strompfad 7
- Einen Schließer auf der Seite 7 im Strompfad 7
- Auf der Seite 7ist ein Kontakt von 6K1 gezeichnet, die dazugehörige Spule findet sich auf der Seite im Schaltplan.
4. Kontaktnummer der einzelnen Bauteile
Die Nummerierung der einzelnen Kontakt ist fortlaufend und gibt Auskunft um was für einen Kontakt es sich handelt.
Zweistellige Kontakte (z. B. 13/14, 21/22, 11/12 usw.)
Diese Nummern gehören zu Hilfskontakten / Steuerstromkreis und werden zur Signalisierung oder Steuerlogik benutzt (hier wird der Programmablauf verdrahtet).
| Nummernpaar | Kontaktart | Bedeutung |
|---|---|---|
| 13 / 14 | Schließer (NO) | Normal offen → schließt bei Betätigung |
| 23 / 24 | Schließer (NO) | Zweiter Schließer eines Geräts. |
| 33 / 34 | Schließer (NO) | Dritter Schließer. (Zählung geht so weiter: 43/44, 53/54 usw.) |
| Nummernpaar | Kontaktart | Bedeutung |
|---|---|---|
| 11 / 12 | Öffner (NC) | Normal geschlossen → öffnet bei Betätigung. |
| 21 / 22 | Öffner (NC) | Zweiter Öffner. |
| 31 / 32 | Öffner (NC) | Dritter Öffner usw. |
Wechslerkontakt
Ein Wechsler besteht aus einem gemeinsamen Anschluss + Öffner + Schließer:
| Anzahl | Kontakt | Bedeutung |
|---|---|---|
| 1x | Gemeinsamer Kontakt (COM) | Eingang |
| 1x | Öffner (NC) – z. B. 11 | Ausgang |
| 1x | Schließer (NO) – z. B. 14 | Ausgang |
Steuerspulen von Relais / Schützen
| Nummer | Bedeutung |
|---|---|
| A1 / A2 | Anschlüsse der Spule (Steuerspannung). A1 - Spannung, N - Nullleiter |
Einstellige Kontakte (z. B. 1–2, 3–4, 5–6)
Diese Nummern werden für Hauptstromkontakte verwendet (bei Schützen, Leistungsschaltern, Motorschützen usw.) hier wird die Leistung verdrahtet).
| Kontaktpaar | Bedeutung | Einsatz |
|---|---|---|
| 1–2 | Ein- und Ausgang Phase L1 | Hauptstromkreis |
| 3–4 | Ein- und Ausgang Phase L2 | Hauptstromkreis |
| 5–6 | Ein- und Ausgang Phase L3 | Hauptstromkreis |






